Sunderland Farms
Experience the Best of Colchester.
General Information
Welcome to Sunderland Farms in Colchester — a modern rental community that’s actively growing (literally). Here, you’ll find brand-new homes with the finishes you want, the layouts you need, and the lifestyle you’ve been refreshing Zillow for. It’s pet-friendly, people-approved, and perfectly placed between city convenience and lakeside living.
Highlights
Brand New this October
Discover modern comfort and convenience in our thoughtfully designed 1 and 2 bedrooms at 118 Dylan Avenue in Colchester, VT.






Available Units
Explore units available in our Sunderland Farms neighborhood!

Amenities
From keyless entry and in-unit laundry to underground parking and a fitness room, Sunderland Farms has the everyday upgrades you actually want. Garden beds, a micro-bodega, and a dog wash station make life easier — and a little more fun.
In Unit
Community
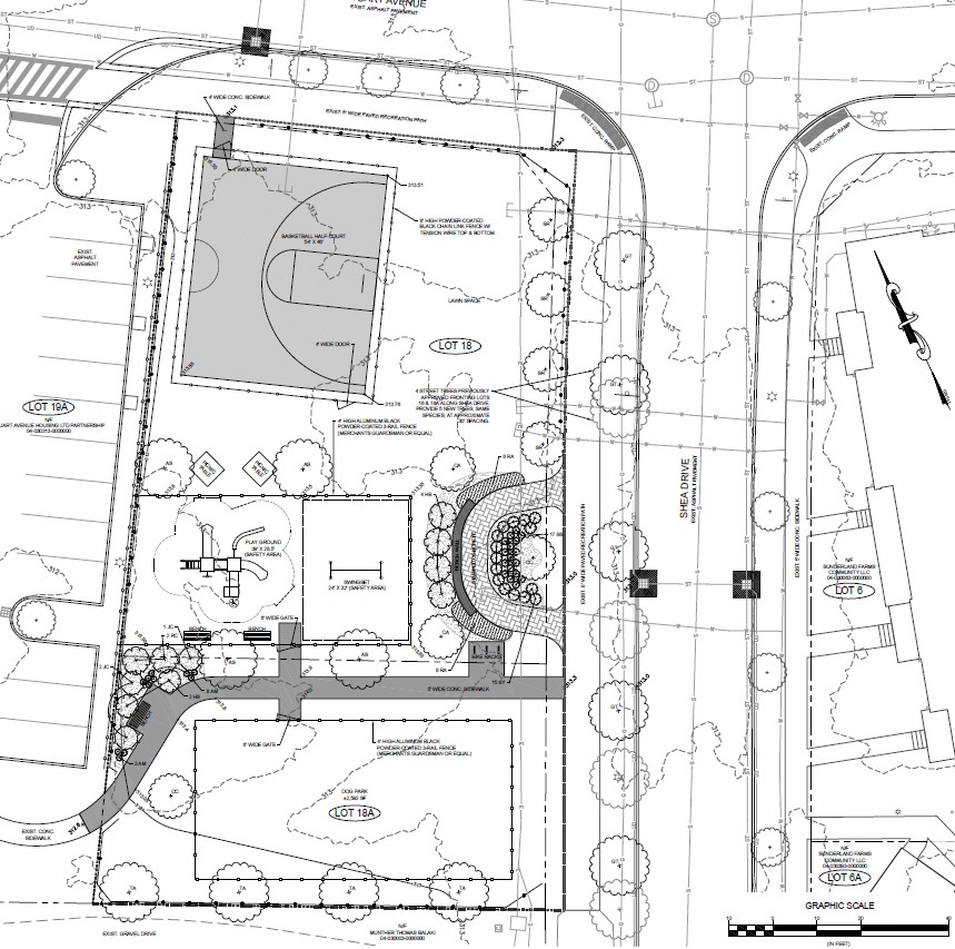
Coming Soon to Sunderland Farms
Coming Soon to Sunderland Farms in Colchester: a brand new Recreation Area located at the corner of Stuart Avenue and Shea Drive.

This new community amenity will feature a half basketball court, fenced dog park, and a playground with swing set, all enhanced by beautiful landscaping. Designed for residents of all ages, the Recreation Area is another way Sunderland Farms continues to invest in outdoor living and community-focused spaces.
Images shown are conceptual and subject to change. Estimated completion is Summer 2026.
Gallery
Scroll through our gallery and get a feel for what life at Sunderland Farms really looks like: light-flooded rooms, Pinterest-worthy kitchens, and front porches made for iced coffee and people-watching. Yes, it’s as peaceful as it looks. Close to It All, Just Far Enough
Neighborhood Story

Sunderland Farms is a growing 33.7-acre rental community at the junction of Rt. 2 and Rt. 127 in Colchester, Vermont. Phase One opened in May 2023, followed by Phase Two in November 2024, Phase Three at 125 Shea Drive in January 2026 and Phase Four at 118 Dylan Ave expected to be ready in October 2026 — offering studio to two-bedroom homes with high ceilings, modern finishes, and smart layouts. Just minutes from Costco, I-89, Lake Champlain, UVM, and downtown Burlington, this location delivers everyday convenience with space to grow.
More homes and commercial space are on the way — and early renters get to be part of the foundation.
Location & Lifestyle
Explore More

Live the Vermont Lifestyle
Enjoy scenic surroundings, walkable neighborhoods, and local charm.

Dedicated Maintenance & Property Management
Our dedicated team takes pride in responsive service—available 24/7.

Comfortable, Accessible, Pet-Friendly
Spaces designed for real life—pets, access, and all.



























